HAFELE FELNYÍLÓ 372.33.720 FREE UP AJTÓ SÍKJÁVAL PÁRHUZAMOSAN FELNYÍLÓ VASALAT 380-500mm; 2,0-3,8

  • Cikkszám: 10003331500
  • Gyártó: Forest
  • Elérhetőség: Rendelhető
  • Raktárkészlet 1: Rendelhető
  • Raktárkészlet 2: Rendelhető
Ár: 62.129 Ft (48.921 Ft + ÁFA)
Lorem ipsum
Lorem ipsum
Lorem ipsum

Paraméterek

Tulajdonság Érték
Cikkszám 10003331500
Régi cikkszám 00003331500
Beszállító Forest
Anyag Fém - Műanyag
Szín Fehér
Rendelési mennyiség Garnitúra

Termékfülek

Leírás

372.33.720

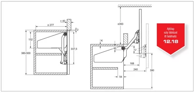
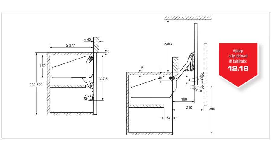
Free Up az ajtó síkjával párhuzamosan felnyíló emelővasalat. Rugóerő beállításától függően az ajtó különböző pozíciókban megállítható. Lágy záródás, a csillapítóerő állítható. A front szerszám nélkül (Clip technika) rögzíthető. A front állíthatósága: magassága / oldalra / dőlése +1,5mm. 1.800mm feletti szekrény szélesség esetén is alkalmazható, ha közbenső függőleges választóra még egy vasalatot felszerelünk. Minimális beépítési szekrény mélység 277mm.

A vasalat egy jobbos és egy balos emelőszerkezetet tartalmaz. Szereléshez a külön rendelhető összekötő rúd szükséges.

A vasalat terhelés (ajtó) nélkül történő csukása, nyítása rendkivűl balesetveszélyes, és a termék tönkremenetéhez vezethet, ezért szígorúan tilos!

Termék címkék:
Forest Free Up vasalat

Hasonló termékek

Vélemények

Erről a termékről még nem érkezett vélemény.
Írja meg véleményét!